Malpas Online Logo Link

News and Events

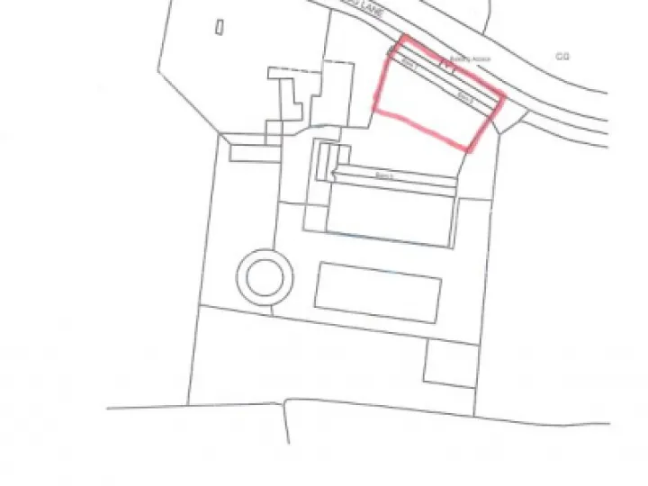
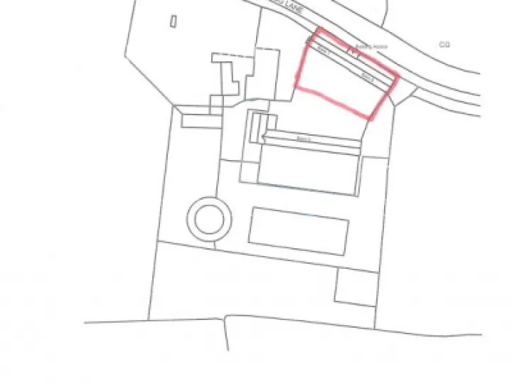
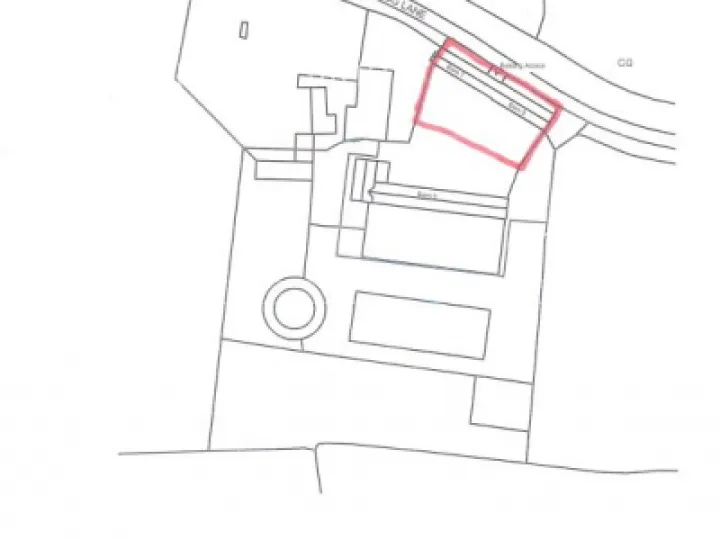
Back home  /  News and Events

Village Map

Get In Touch

MalpasOnline is powered by our active community.

Please send us your news and views using the button below:

© 2005 – 2025 MalpasOnline