







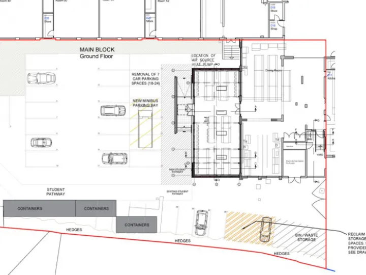
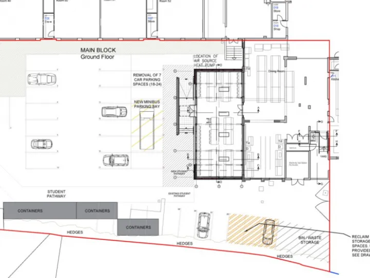
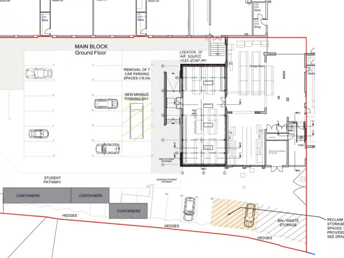
The Parish Council has been notified of a planning application for a canteen extension at the Bishop Heber High School, Malpas.
This application will be discussed at their meeting in the Jubilee Hall at 7:00pm on Monday 10th October.
22/03179/FUL – Single storey extension to canteen (Re-submission of approval 20/00554/FUL)
Further details can be obtained by entering the designated number at the
MalpasOnline is powered by our active community.
Please send us your news and views using the button below: