







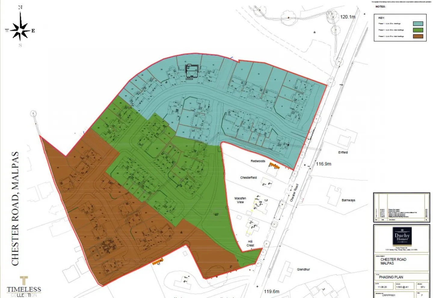
The Parish Council has been notified of a planning application to remove conditions appertaining to the development on land off Chester Road, Malpas.
This application will be discussed at their meeting in the Jubilee Hall at 7:00pm on Monday 10th October.
22/03297/S73 – Removal of conditions on land off Chester Road.
Further details can be obtained by entering the designated number at the
Cheshire West planning portal
MalpasOnline is powered by our active community.
Please send us your news and views using the button below: