







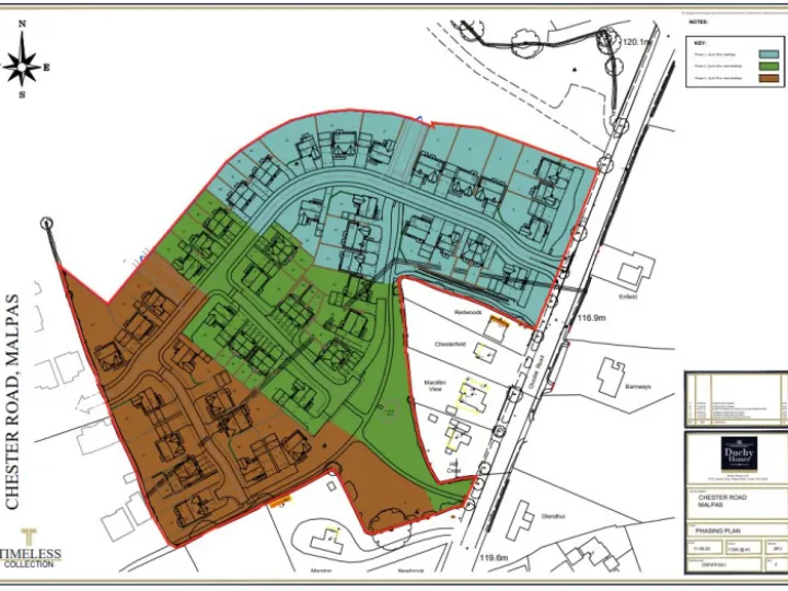
Land off Chester Road – Residential development for up to 57 dwellings, the provision of a Community Health Hub and open space.
The Parish Council has been notified of a planning application (22/03297/S73) for the removal of conditions 18 (future connection) and 19 (BREEAM completion) and a variation condition 5 (phasing plan) of planning permission 17/04664/OUT at Land Off Chester Road Malpas
This application will be discussed at their meeting in the Jubilee Hall at 7:00pm on Monday 14th November.
Comment or see more information at the Cheshire West Planning Portal
MalpasOnline is powered by our active community.
Please send us your news and views using the button below: